
扫一扫,了解详情咨询
传 真:0412-8563322
手 机:13188096776(手机微信同步)
手 机:15042298876(手机微信同步)
联系人:孙经理
QQ:137221353
邮 箱:stonesun168@sohu.com
□结构特点和应用范围
ZDRF型电子式电动偏心旋转调节阀由角行程电子式电动执行机构通过支架与偏心旋转调节机构组成。具有结构紧凑、操作方便、调节精度高、流通能力大、密封性好等特点。广泛用于化工、石油、冶金、电站等工业生产过程的自动调节和远程控制系统中。
□型号、规格
|
类别 |
常 温 型 |
中 温 型 |
|
型号 |
|
|
|
规格 |
DN25~300 |
|
□技术参数和性能指标
●调节机构主要技术参数
|
公称通径 mm |
25 |
40 |
50 |
80 |
100 |
150 |
200 |
250 |
300 |
|||
|
阀座直径 mm |
25 |
32 |
40 |
50 |
65 |
80 |
100 |
125 |
150 |
200 |
250 |
300 |
|
额定流量系数 Kv |
12 |
19 |
30 |
48 |
75 |
120 |
190 |
300 |
480 |
930 |
1200 |
1900 |
|
公称压力MPa |
6.4 |
|||||||||||
|
额定转角 º |
50 |
|||||||||||
|
介质温度 ºC |
-20~200(常温);-40~450(中温) |
|||||||||||
|
流量特性 |
近似直线特性 |
|||||||||||
|
法兰尺寸、型式 |
按JB/T79.2-94凹式 对夹式法兰连接 |
|||||||||||
|
阀体材质 |
ZG230-450; ZG1Cr18Ni9Ti |
|||||||||||
|
阀芯材质 |
1Cr18Ni9 , 0Cr18Ni12Mo2Ti |
|||||||||||
|
阀座材质 |
0Cr18Ni12Mo2Ti ; 聚四氟乙烯 |
|||||||||||
|
配用执行机构型号 |
361RSA-05 |
361RSB-10 |
361RSB-20 |
361RSC-50 |
361RSC-60 |
|||||||
|
361RXB-10 |
361RXB-20 |
|||||||||||
注:根据现场条件,可配用防爆型执行机构。
●3610R角行程电子式电动执行机构技术参数
|
型 号 |
输出力矩N·m |
动作时间S/90º |
技术参数 |
|
361RSA-05 |
50 |
17 |
电源:220V±10%V a.c. |
|
361RSB-10 |
100 |
18 |
|
|
361RSB-20 |
200 |
36 |
|
|
361RSC-30 |
300 |
24.0 |
|
|
361RSC-50 |
500 |
42 |
|
|
361RSC-60 |
600 |
48 |
|
|
361RXB-10 |
100 |
18.0 |
|
|
361RXB-20 |
200 |
36 |
●性能指标
|
项 目 |
指 标 值 |
||
|
基 本 误 差 % |
±2.5 |
||
|
回 差 % |
2.0 |
||
|
死 区 % |
3.0 |
||
|
始终点偏差% |
电开 |
始点 |
±2.5 |
|
终点 |
±2.5 |
||
|
电关 |
始点 |
±2.5 |
|
|
终点 |
±2.5 |
||
|
额定行程偏差% |
+2.5 |
||
|
允许泄漏量1/h |
10-4×阀额定容量 |
||
●允许压差
|
公称通径 mm |
25 |
40 |
50 |
80 |
100 |
150 |
200 |
250 |
300 |
|||
|
阀座直径 mm |
25 |
32 |
40 |
50 |
65 |
80 |
100 |
125 |
150 |
200 |
250 |
300 |
|
允许压差MPa |
6.4 |
3.8 |
2.4 |
1.3 |
2.4 |
1.8 |
1.5 |
0.87 |
0.4 |
0.3 |
0.2 |
|
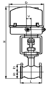
□外形尺寸
●电子式电动偏心旋转调节阀外形尺寸表mm
|
公称通径 |
25 |
40 |
50 |
80 |
100 |
150 |
200 |
250 |
300 |
|||
|
阀座直径 |
25 |
32 |
40 |
50 |
65 |
80 |
100 |
125 |
150 |
200 |
250 |
300 |
|
L |
100 |
115 |
115 |
125 |
165 |
165 |
195 |
230 |
230 |
245 |
300 |
340 |
|
H1 |
40 |
54 |
54 |
54 |
67 |
67 |
85 |
116.5 |
116.5 |
150 |
167 |
205 |
|
R1 |
— |
— |
— |
— |
85 |
85 |
100 |
140 |
140 |
172.5 |
200 |
230 |
|
D |
225 |
225 |
225 |
225 |
255 |
255 |
255 |
335 |
335 |
335 |
335 |
335 |
|
V |
56 |
56 |
56 |
56 |
68 |
68 |
68 |
80 |
80 |
80 |
80 |
80 |
|
H |
477 |
491 |
491 |
491 |
641 |
641 |
669 |
857.5 |
857.5 |
1039 |
1152 |
1220 |

□订货须知
订货时应详细说明以下条件:
●产品型号;
●工作温度范围;
●公称通径和额定流量系数Kv;
●电动执行器内是否带空间加热器;
●阀前压力,阀后压力;
●电动执行器是否带过载保护装置;
●阀体材质;
●是否有其它特殊要求。
注:3610R系列电子式电动执行机构和偏心旋转调节阀分别接受单机订货。

扫一扫,了解详情咨询
营业执照 技术支持:龙采科技