
扫一扫,了解详情咨询
传 真:0412-8563322
手 机:13188096776(手机微信同步)
手 机:15042298876(手机微信同步)
联系人:孙经理
QQ:137221353
邮 箱:stonesun168@sohu.com
型气动蝶阀
□结构特点和应用范围
型气动蝶阀结构简单紧凑,加工方便,易制成大口径,具有自清洗作用,阻力系数小,流通能力大。适用于悬浮颗粒的流体及浓、浊浆状流体的调节。
□型号、规格
| 类 别 |
薄 膜 式 |
活 塞 式 |
||||
|
常 温 式 |
中 温 式 |
高 温 式 |
常 温 式 |
中 温 式 |
高 温 式 |
|
|
型 号 |
|
|
|
|
|
|
|
规 格 |
DN50~500 |
DN600~1000 |
||||
□技术参数和性能指标
●调节机构主要技术参数
| 公称通径 mm |
50 |
80 |
100 |
125 |
150 |
200 |
250 |
300 |
350 |
400 |
450 |
500 |
600 |
700 |
800 |
900 |
1000 |
|
|
额定流量系数Kv |
85 |
220 |
340 |
530 |
770 |
1360 |
2130 |
3060 |
4160 |
5450 |
6900 |
8500 |
12200 |
16600 |
21700 |
27540 |
34000 |
|
|
公称压力 MPa |
0.6 |
|||||||||||||||||
|
额定转角 º |
70 |
|||||||||||||||||
|
信号压力 KPa |
20~100 |
|||||||||||||||||
|
流量特性 |
近似等百分比 |
|||||||||||||||||
|
介质温度 ºC |
-20~200(常温);-40~450(中温);-40~600(高温) |
|||||||||||||||||
|
接管法兰 |
按JB78-59对夹式法兰连接 |
|||||||||||||||||
|
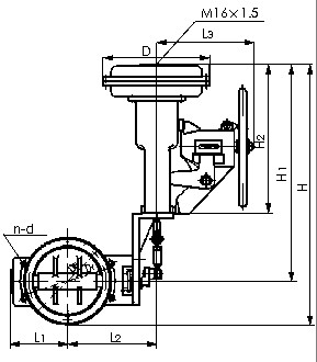
信号连接螺孔 |
M16×1.5 |
|||||||||||||||||
|
配用执行机构 |
薄膜式 |
ZMA-2 |
ZMA-3 |
ZMA-4 |
ZMA-5 |
|
||||||||||||
|
活塞式 |
|
|
|
|
ZSC-45 |
|||||||||||||
|
阀体材质 |
ZG230-450; 1Cr18Ni9; ZG1Cr18Ni9Ti; ZG0Cr18Ni12Mo2Ti |
|||||||||||||||||
●薄膜式执行机构主要技术参数
| 型 号 |
ZMA-2 |
ZMA-3 |
ZMA-4 |
ZMA-5 |
|
有效面积 cm2 |
280 |
400 |
630 |
1000 |
|
行 程 mm |
16 |
25 |
40 |
60 |
|
弹簧范围 KPa |
20~100 ; 40~200 ; 20~60 ; 60~100 |
|||
●活塞式执行机构主要技术参数
| 型 号 |
活塞直径mm |
有效面积cm2 |
最大行程mm |
最大操作压力KPa |
最大输出力N |
|
ZSC-45 |
250 |
484 |
60 |
500 |
21800 |
●性能指标
| 执 行 机 构 |
薄 膜 式 执 行 机 构 |
活塞式执行机构 |
|||||
|
类 别 |
不带定位器 |
带定位器 |
带定位器 |
||||
|
弹簧范围KPa |
|||||||
|
20~100 |
20~60 |
||||||
|
项 |
基 本 误 差% |
±8 |
— |
±2.0 |
±2.0 |
||
|
回 差% |
6 |
— |
2.0 |
2.0 |
|||
|
死 区% |
5 |
— |
0.8 |
0.8 |
|||
|
始终点 |
气 开 |
始点 |
±4.0 |
±4.0 |
±2.0 |
±2.0 |
|
|
终点 |
±8 |
±8 |
|||||
|
气 关 |
始点 |
±8 |
±8 |
||||
|
终点 |
±4.0 |
±4.0 |
|||||
|
额定转角偏差% |
+2.5 |
||||||
|
允许泄漏量l/h |
2×10-2×阀的额定容量 |
||||||
●允许压差 MPa
|
配用执行 机构型号 |
ZMA-2 |
ZMA-3 |
ZMA-4 |
ZMA-5 |
ZSC-45 |
||||||
|
0º |
70º |
0º |
70º |
0º |
70º |
0º |
70º |
0º |
70º |
||
|
公 |
50 |
0.6 |
0.097 |
|
|
|
|
|
|
|
|
|
80 |
0.6 |
0.038 |
|
|
|
|
|
|
|
|
|
|
100 |
0.556 |
0.0196 |
|
|
|
|
|
|
|
|
|
|
125 |
|
|
0.6 |
0.0250 |
|
|
|
|
|
|
|
|
150 |
|
|
0.444 |
0.015 |
|
|
|
|
|
|
|
|
200 |
|
|
0.185 |
0.00587 |
|
|
|
|
|
|
|
|
250 |
|
|
|
|
0.331 |
0.00845 |
|
|
|
|
|
|
300 |
|
|
|
|
0.181 |
0.00461 |
|
|
|
|
|
|
350 |
|
|
|
|
0.133 |
0.00292 |
|
|
|
|
|
|
400 |
|
|
|
|
|
|
0.216 |
0.00485 |
|
|
|
|
450 |
|
|
|
|
|
|
0.171 |
0.00341 |
|
|
|
|
500 |
|
|
|
|
|
|
0.139 |
0.0025 |
|
|
|
|
600 |
|
|
|
|
|
|
|
|
0.6 |
0.019 |
|
|
700 |
|
|
|
|
|
|
|
|
0.6 |
0.0119 |
|
|
800 |
|
|
|
|
|
|
|
|
0.442 |
0.00795 |
|
|
900 |
|
|
|
|
|
|
|
|
0.339 |
0.00599 |
|
|
1000 |
|
|
|
|
|
|
|
|
0.236 |
0.00403 |
|
□可配附件
手轮、定位器、空气过滤减压器等。
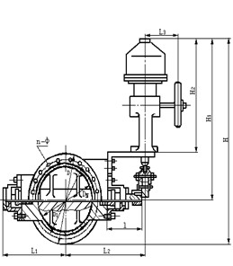
□外形尺寸 mm
| 公称通径DN |
D1 |
D2 |
L1 |
L2 |
n-d |
H |
H1 |
H2 |
D |
L3 |
法兰端面距 |
|
50 |
110 |
|
92 |
200 |
4-14 |
637 |
582 |
382 |
280 |
278 |
60 |
|
80 |
150 |
125 |
92 |
200 |
4-18 |
644 |
582 |
382 |
280 |
278 |
|
|
100 |
175 |
145 |
102 |
210 |
654 |
280 |
278 |
||||
|
125 |
200 |
175 |
117 |
234 |
8-18 |
723 |
636 |
436 |
325 |
278 |
|
|
150 |
225 |
200 |
130 |
247 |
736 |
325 |
278 |
||||
|
200 |
280 |
255 |
172 |
287 |
763 |
325 |
278 |
70 |
|||
|
250 |
335 |
310 |
197 |
327 |
12-18 |
1008 |
853 |
615 |
410 |
376 |
|
|
300 |
395 |
362 |
227 |
351 |
12-23 |
1034 |
410 |
376 |
80 |
||
|
350 |
445 |
412 |
252 |
376 |
1059 |
410 |
376 |
||||
|
400 |
495 |
462 |
296 |
432 |
16-23 |
1238 |
1007 |
720 |
495 |
376 |
100 |
|
450 |
550 |
518 |
321 |
459 |
1266 |
495 |
376 |
||||
|
500 |
600 |
568 |
346 |
484 |
1291 |
495 |
376 |
||||
|
600 |
705 |
755 |
480 |
565 |
20-25 |
1486 |
1109 |
796 |
|
180 |
150 |
|
700 |
810 |
860 |
530 |
615 |
24-25 |
1539 |
|
180 |
|||
|
800 |
920 |
975 |
595 |
675 |
24-30 |
1596 |
|
180 |
200 |
||
|
900 |
1020 |
1075 |
685 |
770 |
24-30 |
1661 |
1124 |
|
180 |
||
|
1000 |
1125 |
1175 |
735 |
810 |
28-30 |
1711 |
1124 |
|
180 |
200 |
|
|
|
□主要零件材料及推荐使用范围
□订货须知
订货时应详细说明以下条件:
●产品型号、规格;
●流体介质种类;
●公称通径DN、额定流量系数Kv;
●介质工作温度范围;
●信号压力,弹簧范围;
●阀体,阀板的材质;
●流量特性;
●是否带手轮机构及定位器说明型号;
●阀前、后压力;
●是否有其它特殊要求。

扫一扫,了解详情咨询
营业执照 技术支持:龙采科技