
扫一扫,了解详情咨询
传 真:0412-8563322
手 机:13188096776(手机微信同步)
手 机:15042298876(手机微信同步)
联系人:孙经理
QQ:137221353
邮 箱:stonesun168@sohu.com
| 类别 |
常 温 型 |
中 温 型 |
低 温 型 |
||
|
型号 |
|
|
|
|
|
|
规格 |
DN25~300 |
||||
□技术参数和性能指标
●套筒调节机构主要技术参数
| 公称通径 mm |
25 |
40 |
50 |
65 |
80 |
100 |
150 |
200 |
250 |
300 |
||
|
额定流量系数 Kv |
2、3.2、 |
16 |
25 |
40 |
63 |
100 |
250 |
400 |
630 |
1000 |
||
|
公称压力 MPa |
1.6 、 6.4 |
|||||||||||
|
行 程 mm |
16 |
25 |
40 |
60 |
100 |
|||||||
|
流量特性 |
直线、等百分比 |
|||||||||||
|
介质温度 ºC |
-20~200(常温);-40~450(中温);-250~-60(低温) |
|||||||||||
|
法兰尺寸、型式 |
PN16:按JB78-59光滑式 |
|||||||||||
|
阀体 |
公称压力MPa |
1.6 |
常温: HT200 ZG230-450 ZG1Cr18Ni9Ti |
|||||||||
|
6.4 |
常温: ZG230-450 ZG1Cr18Ni9Ti |
|||||||||||
|
中温: ZG230-450 ZG1Cr18Ni9Ti |
||||||||||||
|
低温: ZG1Cr18Ni9Ti |
||||||||||||
注:可为用户提供GB、ANSI、JPI、JIS、DIN等法兰结构型式,法兰距按用户需要确定。
●电动执行机构与阀配组
| 公称通径 mm |
25 |
40 |
50 |
65 |
80 |
100 |
150 |
200 |
250 |
300 |
|
|
配电动 |
ZDLM |
361LSA-20 |
361LSB-30 |
361LSB-50 |
361LSC-65 |
361LSC-99 |
|||||
|
ZDLM2 |
361LSB-30 |
361LSB-50 |
361LSC-65 |
361LSC-99 |
361LSC-160 |
||||||
|
动作速度mm/s |
ZDLM |
2.1 |
3.5 |
1.7 |
3.4 |
2.0 |
|||||
|
|
3.5 |
1.7 |
3.4 |
2.0 |
1.0 |
||||||
3610L型直行程电子式电动执行机构主要技术参数
| 型 号 |
额定输出力 N |
速 度 mm/s |
技 术 参 数 |
|
361LSA-20 |
2000 |
2.1 |
电 源:220V±10%V a.c. |
|
361LSB-30 |
3000 |
3.5 |
|
|
361LSB-50 |
5000 |
1.7 |
|
|
361LSC-65 |
6500 |
3.4 |
|
|
361LSC-99 |
10000 |
2.0 |
|
|
361LSC-160 |
16000 |
1.0 |
●性能指标
| 项 目 |
指 标 值 |
|
|
基 本 误 差 % |
±2.5 |
|
|
回 差 % |
2.0 |
|
|
死 区 % |
3.0 |
|
|
始终点偏差 % |
±2.5 |
|
|
额定行程偏差% |
+2.5 |
|
|
允许泄漏量1/h |
ZDLM型 |
1×10-3×阀额定容量 |
|
ZDLM2型 |
1×10-5×阀额定容量 |
|
|
ZDLM3型 |
1×10-4×阀额定容量 |
|
●允许压差
| 公称通径 mm |
25 |
40 |
50 |
65 |
80 |
100 |
150 |
200 |
250 |
300 |
|
|
允许压差 |
ZDLM |
6.4 |
3.6 |
2.7 |
2.6 |
2.1 |
|||||
|
ZDLM2(M3) |
6.4 |
5.5 |
4.1 |
3.2 |
2.4 |
||||||
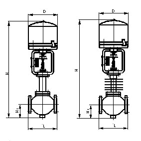
□外形尺寸 mm
|
公称 通径 |
L |
D |
H1 |
H |
H2 |
Dn |
|||||||
|
PN(MPa) |
常温 |
中温 |
-100ºC |
-200ºC |
-250ºC |
-100ºC |
-200ºC |
-250ºC |
|||||
|
1.6 |
6.4 |
||||||||||||
|
25 |
185 |
200 |
225 |
110 |
665.5 |
820 |
1120 |
1320 |
1523 |
500 |
700 |
900 |
290 |
|
40 |
220 |
235 |
255 |
131 |
731.5 |
903 |
1317 |
1517 |
1717 |
330 |
|||
|
50 |
250 |
265 |
131 |
755.5 |
909 |
1329 |
1529 |
1729 |
360 |
||||
|
65 |
275 |
295 |
171 |
957.5 |
1124 |
1460 |
1660 |
1860 |
600 |
800 |
1000 |
405 |
|
|
80 |
300 |
320 |
189 |
980.5 |
1150 |
1478 |
1678 |
1878 |
430 |
||||
|
100 |
380 |
400 |
208 |
1028.5 |
1192 |
1497 |
1697 |
1897 |
520 |
||||
|
150 |
530 |
550 |
310 |
275 |
1348.5 |
1586 |
1855 |
2055 |
2255 |
700 |
900 |
1100 |
695 |
|
200 |
640 |
670 |
320 |
1423.5 |
1666 |
1900 |
2100 |
2300 |
840 |
||||
|
250 |
780 |
810 |
390 |
1621.5 |
1883 |
|
|
|
|
|
|
|
|
|
300 |
880 |
950 |
450 |
1733.5 |
1998 |
|
|
|
|
||||
|
|
□工作温度与许用介质压力的关系
□订货须知
订货时应详细说明以下条件:
●产品型号;
●阀前后压力;
●公称通径及额定流量系数Kv;
●介质种类和温度范围;
●流量特性;
●电动执行器内是否带空间加热器;
●阀体材质;
●电动执行器是否带过载保护装置;
●低温阀需注明使用温度或接管长度;
●是否有其它特殊要求。
注:3610L系列电子式电动执行器和套筒调节阀分别接受单机订货。

扫一扫,了解详情咨询
营业执照 技术支持:龙采科技