
扫一扫,了解详情咨询
传 真:0412-8563322
手 机:13188096776(手机微信同步)
手 机:15042298876(手机微信同步)
联系人:孙经理
QQ:137221353
邮 箱:stonesun168@sohu.com
ZDLJp-B型电子式电动保温夹套精小型单座调节阀
□结构特点和应用范围| 型 号 |
|
|
规 格 |
DN20~200 |
□技术参数和性能指标
●调节机构主要技术参数
| 公称通径mm |
20 |
25 |
40 |
50 |
65 |
80 |
100 |
150 |
200 |
||||||
|
阀座直径mm |
10 |
12 |
15 |
20 |
26 |
32 |
40 |
50 |
65 |
80 |
100 |
125 |
150 |
200 |
|
|
额定流量系数Kv |
直线 |
1.8 |
2.8 |
4.4 |
6.9 |
11 |
17.6 |
27.6 |
44 |
69 |
110 |
176 |
275 |
440 |
690 |
|
等百分比 |
1.6 |
2.5 |
4 |
6.3 |
10 |
16 |
25 |
40 |
63 |
100 |
160 |
250 |
400 |
630 |
|
|
公称压力MPa |
1.6、4.0、6.4 |
||||||||||||||
|
配电子式电动执行器 |
361LSA-08 |
361LSA -20 |
361LSB-30 |
361LSB-50 |
361LSC-65 |
||||||||||
|
行 程mm |
16 |
25 |
40 |
60 |
|||||||||||
|
流星特性 |
直线、等百分比 |
||||||||||||||
|
保温介质温度℃ |
100~350 |
||||||||||||||
|
保温介质压力MPa |
1 |
||||||||||||||
|
法兰尺寸、型式 |
PN16按JB78-59光滑式;PN40.64按JB/T79.2-94凹式 |
||||||||||||||
|
阀体材质 |
ZG230-450,ZG1Cr18Ni9Ti,ZG0Cr18Ni12MoTi |
||||||||||||||
|
可调比 |
50:1 |
||||||||||||||
注:根据现场使用情况,可配防爆型执行机构。
●执行机构主要技术参数
| 型 号 |
额定输出力N |
速度mm/S |
技术参数 |
|
361LSA-08 |
800 |
4.2 |
电源:220+10%V a. c. |
|
361LSA-20 |
2000 |
2.1 |
|
|
361LSB-30 |
3000 |
3.5 |
|
|
361LSB-50 |
5000 |
1.7 |
|
|
361LSC-65 |
6500 |
3.4 |
●性能指标
| 项 目 |
指 标 值 |
|
基 本 误 差 % |
+2.5 |
|
回 差 % |
2.0 |
|
死 区 % |
3.0 |
|
额定行程偏差 % |
+2.5 |
|
允许泄漏量 1/h |
10-4×阀的额定容量 |
●允许压差
| 公称通径mm |
20 |
25 |
40 |
50 |
65 |
80 |
100 |
150 |
200 |
|||||
|
阀座直径mm |
10 |
12 |
15 |
20 |
26 |
32 |
40 |
50 |
65 |
80 |
100 |
125 |
150 |
200 |
|
允许压差MPa |
6.4 |
6.4 |
4.5 |
2.5 |
3.22 |
3.28 |
2.15 |
1.4 |
1.37 |
0.94 |
0.61 |
0.52 |
0.35 |
0.2 |
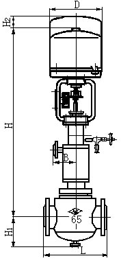
●外形尺寸 mm
|
公称 通径 |
L |
H |
H1 |
H2 |
B |
D |
重量 kg |
||||
|
PN16 |
PN40 |
PN64 |
PN16 |
PN40 |
PN64 |
||||||
|
20 |
206 |
210 |
235 |
653 |
67 |
205 |
112 |
225 |
28 |
31 |
38 |
|
25 |
206 |
235 |
235 |
670 |
75 |
205 |
112 |
225 |
38 |
43 |
50 |
|
40 |
235 |
251 |
367 |
817 |
82 |
260 |
112 |
255 |
55 |
59 |
78 |
|
50 |
267 |
292 |
292 |
823 |
92 |
260 |
112 |
255 |
54 |
60 |
80 |
|
65 |
311 |
337 |
352 |
933 |
179 |
260 |
113.5 |
255 |
64 |
68 |
71 |
|
80 |
337 |
368 |
394 |
946 |
208 |
260 |
113.5 |
255 |
75 |
80 |
83 |
|
100 |
394 |
394 |
451 |
957 |
217 |
260 |
113.5 |
255 |
89 |
94 |
96 |
|
150 |
600 |
650 |
650 |
1271 |
341 |
380 |
134 |
310 |
174 |
176 |
180 |
|
200 |
672 |
734 |
766 |
1189 |
365 |
380 |
134 |
310 |
196 |
198 |
200 |
|
|
|
□订货须知
订货时应详细说明以下条件:
●产品型号;
●额定流量系数kv;
●公称通径;
●阀前后压力及公称压力;
●阀体材质;
●介质种类和温度范围;
●电动执行器内是否带空间加热器;
●电动执行器内是否带过载保护装置;
●是否有其它特殊要求。

扫一扫,了解详情咨询
营业执照 技术支持:龙采科技